Fraser Bench Subdivision Plan Approved
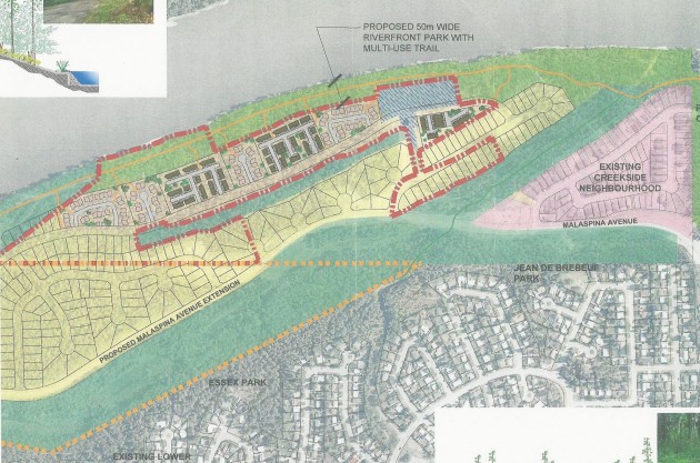
Conceptual layout of new subdivision planned for Fraser Bench –
Prince George, B.C. – The plan for a new subdivision on the Fraser Bench lands in College Heights would add some 200 housing units to the region and Council has given it the green light.
To create the subdivision, the developer needed some of the property rezoned.
The project would cover 67 hectares, and includes a 50-60m wide strip that would be dedicated green space along the Fraser River, rustic trails and a mix of single, multi family and seniors housing.
An updated traffic study would be done once 200 units have been built, but the long range plan would see Malaspina Avenue join up with Cowart Road.
Three residents of the neighbouring neighbourhoods spoke against the project citing loss of green space, broken promises from the developer, and concerns over environmental damage.
“I understand where these people are coming from when they feel someone’s word isn’t being lived up to” said Councillor Brian Skakun “but I support this application because it will add to our tax base.”
Mayor Lyn Hall says he too is concerned about the impression that developers are not living up to promises made. He suggested that is a conversation that will need to be held at another time to see what role, if any, council can play in assuring that developers live up to the promises made.
The rezoning was approved unanimously by Council .

Comments
Just from the picture above it looks nice I guess, but I hope these people purchasing these new homes realize that they are directly across from the rail yard which goes 24/7/365. There will be no quiet time.
The normal response would be to whine about the noise and insist the rail yard be moved, or the hours of operation restricted.
Oh and developers not living up to promises made? That’s generally because of the city allowing changes. One instance that comes to mind is those newer townhouses by Tabor and 5th – there was supposed to be a small park in the middle of them. Halfway through the development, after people had purchased their new home, developer goes to the city to change the plan and put in another unit in place of the park. I wouldn’t be impressed if I was one of the first buyers.
The plan was ok’e now what about the process to pay for the stabilization and the fleet? Was that ok’d also?
Not sure, but is this not in the same vicinity of the proposed Hwy 16 bypass bridge (BCR to hwy 16 West) that had been planned for not long ago?
The developers are fine, it’s the gong show at the city that keeps throwing wrenches in projects. If Mayor Hall doesn’t understand this, after all his years in this city, that frightens me.
How will this development, which will put loads of cash in the pockets of the dirt pimps, contribute meaningfully to tax revenues while at the same time it adds a huge set of costs to infrastructure development and maintenance? The math just doesn’t add up.
Krusty – these lots will contribute property taxes, and are close to an existing neighbourhood, which limits the cost of the expansion. They will earn more money in the long term than the cost of services.
With your theory, no new subdivision will ever be created.
Found my answer.
Those against the borrowing will need to either go to city hall in person or go to city hall’s website to fill out the response forms which should be available no later than Sept. 17.
We need 10 per cent or more of eligible voters to return forms (5,120 people) by Oct. 28 showing their opposition, council can’t authorize applying for the loan unless they get approval via referendum.
I for one will be filling out this form as I am tired of subsidizing these developers with my tax dollars.
PG101 …. I agree that it is a gong show, but for different reasons than you indicated.
They have a different mindset than the previous council, but they still suffer from the same old corporate memory loss, as does administration even though Soltis was there in 2006.
Why do I bring 2006 up? Because that is when the original plan for the entire Fraser Bench in that area was approved on conditions that concerns about noise be addressed.
princegeorge.ca/citybusiness/longrangeplanning/neighbourhoodplans/fraserriverbench/Pages/Default.aspx
From that report come words such as these: “It is anticipated that the noise generated from the Industrial Park may impact residential development. However, this impact can be mitigated through appropriate building construction and design.
“It is recommended that the zoning regulations developed for the Fraser River Bench Lands consider additional methods to mitigate the impact of industrial noise.”
I saw none of that last night.
People such as you often complain about those who bitch about industry close to residential and quite rightfully respond that industry was there first.
So, the original plan of 2006 had at least some consideration of how to mitigate that noise as well as sight impact. While a couple of Councillor expressed some mild concern, not a single individual reminded the decision makers of the original approval of the plan and the remedial actions to be taken by the developer.
I believe the developer fully knows that the river front properties are the most undesirable properties in the development. Merrick asked why the higher density housing was not placed closer to the collector road, as is normal. There was discussion about the quality of the condo/rental housing by those who spoke from the public. Council’s and Administration felt one could not control the quality of the units. To some degree that is true. But the placement of housing is a better predictor of who will tend to buy or rent the housing.
As I keep saying, we have no City Planner. We finally have a City Engineer sitting at Council. We have a Council that has little expertise in City Planning. When Administration is weak in that area as well, we are not being well served. When are we going to get a City Planner sitting at Council who understands these things?
As far as throwing wrenches in projects, this Council did none of that last night. They should have, but failed to do so.
pgjohn wrote: “these lots will contribute property taxes, and are close to an existing neighbourhood, which limits the cost of the expansion. They will earn more money in the long term than the cost of services.”
We have been told time and time again that the density of these subdivisions continue to be on average 4 housing units per acre. Throw in some townhouses and/or low rise apartment units at the amount shown, and that might go up to 5/acre.
Malaspina extension going up to Coward road is virtually a single loaded collector road due to the topography. That, by itself, reduces the gross density of the property and so far nothing has been done along the way to offset that.
The City will have increased maintenance cost as soon as people start moving in. In fact, if one takes the entire City into consideration, one should be looking at new subdivisions and whether they will decrease or increase the average City infrastructure operating expenses on a unit basis. This subdivision looks to me as if it will increase it, but at best, not decrease it.
If we are ever going to get out of the approving of sprawlsville developments such as this, perhaps ever subdivision should be measured with an indicator of how it will affect the per residential unit operating cost of the City.
BTW, any good City Planner can take one look at that layout and the proposed housing densities and, based on experience, give an opinion as to whether the plan will improve the City’s net operating efficiency or diminish it.
Krusty is right on the money!!!
There is substantial multi-family dwellings in the plans, which will likely sustain a positive cash-flow for city maintenance.
Also, the connection between cowart and malaspina are long-overdue. There’s no efficient way of reaching that part of the city currently.
This would substantially reduce the traffic on Simon Fraser which has 3 schools along it (Gladstone, CHSS, College Heights elementary)
Simon Fraser is a collector. You realize, of course, reducing the traffic flow on a street which was designed to take that traffic flow is creating more inefficiency.
The Arterial is Domano. Domano is 4 lane up to Gladstone and St. Lawrence. CHSS is serviced by Domano as well which picks up St. Lawrence Heights population. Don’t make it sound
If the bench lands actually did not exist, which is the way developers up to this century actually looked at it, the streets as designed for CH development up to then were just fine.
One cannot deny, when one looks at the cost and the income factors, the net benefits of this development as proposed will be negative, not positive.
Infill has to be designed for the times we live in. This infill is designed for the 1960/70 era, not 2015.
BTW, a good GIS decision making tool with such factors I am talking about built in will spew out efficiency from the point of view of tax income and operating costs so that a net benefit analysis can be made comparing one design to another.
But then again, we have to rely on L&M and a City without a planning department that understand such things, or are not forced to report out in that fashion.
At this rate we are continuing to operate as normal.
SNAFU
As far as the multi unit development, it is no where near substantial. It is also in the wrong place. The 2006 approved concept was in the right place.
Does anyone know what these companies have in common?
1. College Heights Land Development
2. Heights Land Development Ltd
3. Prince George College Lands
4. Benchland Estates
5. Prince George Heights Land
All these names I found in various media along with the Roman Catholic Church listed as owner of land around the area.
Are they the same company with a name change over the years or separate companies?
Were developers the only people who benefited in amalgamation?
Why does this city put developers first? Why do they put the cart in front of the horse?
Why was the project ok’d before the city has the ok from its citizens to fix an area which will affect this subdivision down the road?
If the city is voted against by it’s taxpayers to borrow money to fix this area will the project still go through?
What are the legal ramifications if something does happen to the terrain in years to come if it is voted against. Will the taxpayer be more on the hook?
Can’t seem to get much of an answer from city hall…..
This city loves the alternative approval process, they rely on people being to lazy to oppose them.
gopg2015, since you are calling out the city’s planning department, and falling just short of calling L&M incompetent, why not enlighten us with your qualifications, your engineering and urban planning degrees that allow you to make such judgements?
It would be interesting to see if you actually have the expertise to spout off about other people’s work, or if you are just another one of those blowhard armchair quarterbacks that knows just enough about a lot of things to be dangerous!
More huge houses with no yard jam packed together.. The noise from the bridge traffic..the dust as well… as along the noise from the rail and industry and it make it a undesirable place to live.. Creekside is still not sold out and yet they are adding more to the area? Then its just a matter of time before the extend it down river to all the people with houses on the green belt on Malisipina ridge have nieghbours.. They wont be happy about that :)
Nytehawk, I have meet gopg before and I would think he is very qualified to make those remarks… Possibly as qualified as anyone in this city. That kind of planning is his background.
Developer put the rentals along the river because renters will often not have a choice with the limited newer rental units in this town. I find the discharge from the hydrogen plant was the most nauseating when I use to live in the Malaspina neighbourhood … A dozen or so days a year it would make me so sick I could almost throw up… Being now down close to river level, I just couldn’t imagine ever living their and maintaining ones health… But the developer will make some money on land that wasn’t ment to be developed.
Municipal campaign donations at its finest…..
What is the building lot inventory looking like in PG these days? Are there still lots of developments with vacant lots waiting for builds to start?
Eagleone.. we have a hydrogen plant in town ? Or are you talking about Chemtrade.. who makes Chlorine Dioxin and Hydrogen is a by product which they used to burn ? Or are you talking about Peroxychem ( used to be FMC) … I think you are actually mixed up… Husky spews out the nauseating vapours ( although they seem to be much better since the last shutdown)
NyteHawwk, we can meet and share CV’s. Then you would know as much as Eagleone knows. Many people know who I am, including many at City Hall who are the decision makers who follow 250News on occasion.
Suffice it to say that I was recruited from Toronto in 1973 by the Architecture/Planning firm that was the Consulting City Planner from the mid 1960s to mid 1970s when this City was growing by leaps and bounds. Most of that time College Heights was part of the regional district until it was amalgamated. The planning of that are was done by Heights Land. Our firm did everything west of Central and south.
By 1975 we had a staff of 25. That was larger than many firms in Vancouver. I came from a firm in Ottawa which had 50 staff, but we had the full complement of Architects, Planners, Civil, Mechanical and Electrical Engineers, Interior Designers and Landscape Architects.
In 1975, our planning room had a pasted together drawing on one wall of the access road to Cranbrook Hill (University Way) from 5th Avenue connecting with Domano and an approximation of the layout of subdivision on either side. Those were the days when the Province was predicting PG would have a population of around 150,000 by 2000 and the City was paying planners to give them an idea of what that city would look like.
The plans were all using the Don Mills (Toronto) concepts of primary single family lots. All wiring was underground, curbs and gutters, wide streets, and even wider collectors and arterials with grassed boulevards. A community designed for the automobile and cheap gas. What was missing were the higher density housing including 20/30 story apartments sitting on expanses of landscaping with underground parking.
The subdivision planning these days is not different here. Go to the new developments in Kelowna, for instance, it is quite different. There is a good mix of small shopping plazas with commercial offices as well as retail with some high rise condos thrown in, gated communities with internal roads built to the standard of the condo development, not city standards and not maintained by the City.
So, what about you Nytehawwk? Where do you fit into all of this that you have some different thought about what makes for a subdivision plan for the 21st Century, not the 20th . We have to move with the times. Then again, we can keep talking out of one side of our mouths in the OCP and talking out of the other on Council and Administration. We only have ourselves to blame for that. Neither one is “right”. They are just different points of view. What we do know is that one is more efficient that the other.
Any new developments is great for this city. The amount that are proposed, and never return after hearing the cities demands for anything new is staggering. The city hangs on to land like it has hidden gold in it, they do not rezone to accommodate.. and the city remains at 80k forever.
Kelowna, Kamloops..very proactive with developers. It’s a known fact PG is one of the most unfriendly cities to do business with, developers dread any projects here.
In a paper dated Nov 2/79:
Prince George College Lands is wholly owned by the Roman Catholic Prince Rupert Diocese.
Heightland is a partnership of PG College Lands & PG Homesites Ltd.
Interesting.
Looking at the old media, I cannot find any development/project that was/is turned down involving any of the companies I have mentioned or the Diocese by city hall.
Kelowna, Kamloops..very proactive with developers. It’s a known fact PG is one of the most unfriendly cities to do business with, developers dread any projects here.
================================
Do you think it’s possible that Kelowna and Kamloops attract a different type of developer? Ones that understand what they need to do in order to create successful developments in those cities? Perhaps ones that are willing to go that extra mile to be successful, instead of just doing the bare minimum? Perhaps ones that work with the city to create high quality developments instead of complaining about road blocks and the city being “business unfriendly”?
Check out these design objectives that the city of Ottawa has put out (there is a bunch more related info on their website if you care to look). How do you think your typical PG developer would fare trying to get a project off the ground here?
http ://ottawa.ca/en/city-hall/planning-and-development/community-plans-and-design-guidelines/design-and-planning-0/ur–4
Do you not think there is a correlation between a city that places a priority on achieving high development standards and a city that grows and progresses in a cohesive and desirable manner?
Guesswhat … All those companies were related. CH was first developed by companies owned by the church while they were still in the regional district before amalgamation in 1975.
The province provided several million dollars to expand fire services, add 3 storeys to City Hall, etc. Included in that was $750,000 for a second swimming pool which was supposed to be built in CH.
Bob Flitton was in charge of the developing companies. He left town around 1980 and moved to Kamloops. I designed some of the apartments in Aberdeen he built in that subdivision around that time.
The digitized version of the Citizen stops around the 1980s. The upper part of the extension of Malaspina was developed by Dirk Loedel, and the lower part is being developed by Fortwood. The one developed by Dirk was developed as land used to be develop. Trees were not first cut down.
For those who might remember him as I do, here is a connection to a short YouTube interview.
youtube.com/watch?v=t2O-HMpPbz4
NMG > “Do you think it’s possible that Kelowna and Kamloops attract a different type of developer? Ones that understand what they need to do in order to create successful developments in those cities? Perhaps ones that are willing to go that extra mile to be successful, instead of just doing the bare minimum? Perhaps ones that work with the city to create high quality developments instead of complaining about road blocks and the city being “business unfriendly”?”
You hit the nail on the head, NMG!!!!
There are several in town who think that there has been a conspiracy from the time Moffat was the Mayor. Protectionism for local business people. Stop the city from growing and giving the local small business elite competition.
It used to be easy for retailers, such as clothing retailers, to buy anything they can find from wholesalers, put it on the racks, and it would be gone because it was the only thing available.
When I look at wedding dresses in the window downtown it reminds me of those days. :-)
ottawa.ca/en/city-hall/planning-and-development/community-plans-and-design-guidelines
I brought back the 2 thick planning guidelines Ottawa had in the late 1980s and showed them to the City Planner here. At the time, Ottawa won an award for those. They were the best in the country at the time. Something that is called Best Practices …. not standard practice … not minimum practice.
There are some people who understand best practices in PG in a variety of disciplines. As far as planning goes and, in my opinion, we are lucky to have some standard practices. There are also minimum practices.
I call the apartment building at 6th and Vancouver best practices for the time it was built.
I checked out Benchland Estates which led me to a May 31, 1977 front page article.
There was a controversy about them appearing to go ahead with a 60 lot subdivision off the North Nechako without City approval. One of those small things which get in the way of developers sometimes and causing them to tell everyone that the City is hard to do business in … LOL
The company owners were listed as George Creuzot family and the Roman Catholic Church. George owned Central Enterprises and his son, Art, owned Central Homes and Development Co. Ltd. owned single shares and the Roman Catholic Church, through their Prince George College Lands Company, owned two shares. Cliff Stringer was the manager of PG College Lands.
Moffat did not like their tactic of going to individual Councillors to lobby them. Mercier, McCuish and Moffat were all contacted outside of Council.
McDonald (city planner at the time) said this is the second time a consortium of developers associated with each other went ahead without approval. Heights Land Development was ordered to stop work on extending College Heights southwestward without first obtaining permission.
Catholics like doing business with each other in PG. :-)
It was the wild west then, and too many people still think it is.
gopg2015; you sound like a good Guy to have around I hope you still live here. I was born here in l944 and am watching my friends either die or leave P.G. when they retire. Why do people leave P.G.? Look at our Downtown that’s one of the reasons, it caters to social housing and social problems, that’s why people with problems come here or have been sent here from all over the Provence.
I also was just reading that article. It raises a few questions….Like I wonder who they are dealing in partnership now? For some it appears it is still continuing?
The church and a few newer companies were also involved with many of the new homes in Westgate, Southridge and the end of Haldi road to mention just a few – not to long ago?
“I call the apartment building at 6th and Vancouver best practices for the time it was built.”
In my opinion one of the best plans that could be made by this so called planning dept. would be to recommend rezoning the vast majority of the parcels downtown into apartments etc. City should sell off much of the excess land to promote!.
I know I live in a dream world lol.
“the long range plan would see Malaspina Avenue join up with Cowart Road”
Awesome, now I can race my piped streetbike and diesel pickup up Cowart and Malaspina to get home, instead of taking the Domano route.
Time for a little payback.
Comments for this article are closed.