City Council Approves Hart Sewer Petition
Prince George, B.C. – Prince George City Council unanimously approved a formal petition for another sanitary sewer Local Area Service (LAS) in the Hart at last night’s meeting.
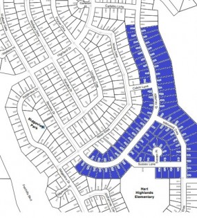
At the request of some area homeowners concerned about their aging septic systems, City staff surveyed residents living along Killarney Drive, Wildwood Crescent, Sussex Lane, Sussex Place, and Calvin Lane earlier this year, finding the majority of respondents in favour of connecting to the City sewer system, if the costs to them could be kept to a minimum. An option just shy of $2-million dollars is being proposed.
A joint City-resident working group was formed to come up with the most cost effective manner for tying the 80 properties shown in the map (courtesy of CPG) into the city system. The group is proposing the work be done by City crews at an estimated cost of $1.944-million dollars, which includes a 20-percent contingency to account for things like bad weather or difficult soil conditions.
The cost to each homeowner in the LAS would be approximately $24,300 plus interest, to be paid through a parcel tax levy over 20-years. Homeowners would have the option to repay the remainder of their debt in its entirety at any point during that repayment period.
Now that the petition has been approved by Council, an information package will be sent to all affected homeowners and a pre-petition information session will be held on October 27th.
The formal petition will then go out at the start of November. If successful, the necessary bylaws would go to council for approval, with construction set to start next year.

Comments
Comments for this article are closed.