BCSPCA Plans New Shelter
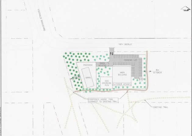
Lot plan for proposed new animal shelter – image courtesy City of Prince George
Prince George, B.C. – There are still several hurdles to overcome, but the BCSPCA has taken the first step towards construction of a new animal shelter for Prince George.
The site selected is at the corner of 18th Avenue and foothills Boulevard, but it required rezoning and a change to the Official Community Plan in order for the next steps to take place.
The current BCSPCA animal shelter on Lansdowne Road, a facility that is undersized and poorly located because it is out of the public eye. The new facility would have a bright main building, a dog exercise pen, paddock and barn. The plan calls for plenty of greenery to act as a buffer so animals at the shelter are not stressed by passing traffic.
“We promise the new shelter will be something the BCSPCA and the City of Prince George will be proud of” said Bob Bush of the BCSPCA.
Council didn’t “paws” to approve the rezoning, giving it unanimous approval, some praising the work of the BCSPCA.
But don’t expect any sod turning anytime soon.
The plan still has to be approved by the Crown, which owns the land, a process that could take about 3 months. Then there’s the conceptual design process. Bush says he expects the sod turning and construction of the new shelter would be about 2 years down the road.

Comments
This is some good news
Interesting. Wonder what the cost will be to relocate this facility, and where the money will come from.
This is a multi-pronged project.
The City owns the current facility. I believe they want the property back for some other use.
There is a contract in place between the BCSPCA and the City to take care of the animals brought in by City Animal Control officers. That is similar to several other communities in BC.
The BCSPCA started off with their own building sitting on a 5 year lease. That lease was not renewed to allow the Aquatic Centre to be built. That followed with the expansion of the soccer fields.
An agreement was reached for the BCSPCA to occupy the City’s Pound. It looks like a pound and is functionally restricted due to its original layout and the City has not provided any assistance in making alterations to improve the functionality as an animal shelter. The BCSPCA obviously was also not willing to sink money into a building they do not own and over which they have not ownership control. If the location was not a problem, and the City was interested in selling the property to the BCSPCA, I am sure that the financially prudent thing would be to buy the building and alter its layout.
That is obviously not an option.
The BCSPCA has designed a relatively standard plan and look of its new buildings about 10 years ago. They have a policy of replacing the many other old buildings located in similar areas of small and large communities with buildings befitting a modern functional Animal Shelter. This is a continuation of implementing the BCSPCA’s duty under the PCA Act to implement the intent of that Act in every corner of the province.
I believe the PG Shelter, when it is built, will act as a northern regional centre to initially house animals taken by the Cruelty Investigation arm of the Association.
I believe the BCSPCA has an annual income of around $25million, most raised by members of the association, a significant amount through legacy donations.
The new PG Humane Society is also funded by private donations.
Finally, I expect such a building, including all fees, permits, etc. to cost in the 2016 C$3 to 4 million range.
Across the street and one block over from where the original building was 20 yrs ago. Progress….
Good news story here. Unfortunately too many people abuse their pets, if not there would be no need for the BCSPCA.
Maybe-probably local business will help to keep the costs of a new facility down.
I hope there is an appetite within the associations for volunteer help and business helping out as well.
Make it easy for any sort of advertising related promotion.
Appoint the right people in charge of construction to allow the use of volunteer or cheap labour AND fully paid labour and materials while maintaining close attention to 2016 construction practices. It can be done.
metalman.
If as you say the City wants the property back, then the relocation is a decision being driven by the City. The location of the new building which just happens to be Provincial property and needs to be rezoned. No mention as to whether this property will be gifted to the SPCA, or if they will have to pay for it.
Perhaps the City will pick up the tab for everything, ie; property, new building, permitting, etc;
If in fact the City wants the property on Lansdowne road, one has to wonder if it is connected to the Fraser River Bench land project.
I would think that if the City wants the existing land, it is to expand the sewage treatment facility, or options to same.
And that could well be to accommodate the Fraser Bench housing development.
metalman.
“The location of the new building which just happens to be Provincial property”
I believe the driver is that the location happens to be near the livestock part of the Exhibition grounds.
The other driver is that L&M engineering has provided some assistance in suggesting this property. It has been in the works for several years and, I believe, has been in the news previously.
The BCSPCA is responsible under the Act of Parliament to investigate cruelty to animals throughout the province. There are two cruelty investigators working out of the PG shelter. Their territory is the entire northern half of BC.
They require facilities to house animals that are confiscated. At the moment they are shipped south or housed locally whenever possible. You will notice there is a barn shown on the drawing.
The province, unlike most other provinces, has not been providing any funds to operate the cruelty investigation function of the society which is actually a provincial responsibility. I recall they used to get $70,000 per year for assistance to operate a function which costs around $2million a year. So, little olde ladies from the southern part of BC have been donating their life’s savings once they leave this earth.
The province finally coughed up some money early in 2015 to assist the BCSPCA to build some new buildings to replace shacks they have been literally working out of, often located next to municipal dumps.
PG pays the local branch some money to house the stray animals that the animal control officers pick up. Several communities have such contracts.
The Regional District goes along for a free ride, contributing nothing for the service.
BCSPCA receives $5 million in provincial budget for new facilities – February 17, 2015
The Facilities Plan is an eight-year strategy totalling $50.4 million to replace or renovate aging BC SPCA infrastructure in 10 communities across British Columbia – the largest capital plan in the organization’s 120-year history.
spca.bc.ca/news-and-events/media-room/press-releases/budget-bcspca-funding-facilities.html
The local shelter has typically been short of annual operating funds, so their revenues have had to be supplemented by head office from surpluses found elsewhere. I know that at one time the shortfall was in the hundreds of thousands of dollars.
I think that the BCSPCA is doing a disservice to the people in this province to not make their operations more transparent. Unless one is involved through local advisory groups, one does not know what is going on with an organization which has a provincial mandate to enforce an act of parliament, has contracts with some local municipalities, receives various provincial funds but operates with probably 80% of their income from private donations.
My thoughts are that the property is too small.
Have a look at the information made public at the Council meeting. You will see some of the images of recent shelters being built.
What I want to know is whether the City has signed a new contract with the BCSPCA yet to continue providing “pound” services and whether they will expect the BCSPCA to provide those services in the new building. If they do, then the building needs to be designed for that purpose as well.
Of course, we now have a PG Humane Society as well, so perhaps the City will put the contract out to a Request for Proposals, or simple tender call with services specified.
This issue leaves a lot of questions to be answered by both the City and the BCSPCA.
While your heart is in the right place with the volunteer construction assistance, there are a lot of legal and logistic issues which have to be dealt with.
WorkSafeBC coverage for workers; warrantees on work in place; certification of payments, etc.
I think fund raisers should work on raising funds and designers, contractors and journeymen should work under contracts to complete a building on time, on budget and to the specification and standards required.
The old adage is, one gets what one pays for.
I love it.
BTW, the horse trails might look nice, but are hardly ever used anymore in that location.
Once Foothills is extended, unless they build a bridge, I am sure they will no longer be used in that location.
I would like to see what will happen to those trails at that time.
Again, where is our planning department????
princegeorge.ca/citybusiness/longrangeplanning/parktrailplans/exhibitionpark/Documents/masterplan_map3.pdf
The link is to the Exhibition Park Master Plan. It is still shown on the City web site. It shows the equestrian trail in a different location with an underpass to the south-west of the park site.
That plan is more than 10 years old. I did not watch Council meeting, so I do not know whether anyone asked how this proposal impacts the plan. It was intended to be treed buffer with some overflow and overnight parking in the area to the south.
There was nothing to show any resulting adjustment. I assume it would be minor. But it also shows that there is more land there for the BCSPCA.
Comments for this article are closed.