Another Parcel of Hart Properties Want To Connect To City Sewer
Prince George, BC – Prince George City Councillors will decide whether to allow a formal petition for another sanitary sewer Local Area Service (LAS) in the Hart at tonight’s meeting.
At the request of some area homeowners concerned about their aging septic systems, City staff surveyed residents living along Killarney Drive, Wildwood Crescent, Sussex Lane, Sussex Place, and Calvin Lane earlier this year, finding the majority of respondents in favour of connecting to the City sewer system, if the costs to them could be kept to a minimum. An option just shy of $2-million dollars is being proposed.

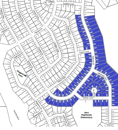
Properties in the proposed Killarney-Wildwood-Sussex LAS
A similar petition was put forward for residents living nearby on Wallace Crescent in December of 2013. It received 60-percent support from residents living on the 100 affected properties, but resulted in friction between some residents concerned over costs and City Hall just prior to the project’s start in June of 2014 (click here, for previous story).
This time, a joint City-resident working group was formed to come up with the most cost effective manner for tying the 80 properties shown in the map at right (courtesy of CPG) into the city system. The group is proposing the work be done by City crews at an estimated cost of $1.944-million dollars, which includes a 20-percent contingency to account for things like bad weather or difficult soil conditions.
The cost to each homeowner in the LAS would be approximately $24,300 plus interest, to be paid through a parcel tax levy over 20-years. Homeowners would have the option to repay the remainder of their debt in its entirety at any point during that repayment period.
If City Councillors approve the formal petition process tonight, an information package will be sent to all affected homeowners and a pre-petition information session will be held on October 27th. The formal petition would then go out at the start of November. If successful, the necessary bylaws would go to council for approval, with construction set to start next year.
Comments
Comments for this article are closed.